• Home
  • Services
  • Our Process
  • Case Studies
  • Our Team
  • Contact Us
Contact Us
linkedin
  • Home
  • Services
  • Our Process
  • Case Studies
  • Our Team
  • Contact Us

Park Plaza – Riverbank

floorplan design for park plaza

DESIGN

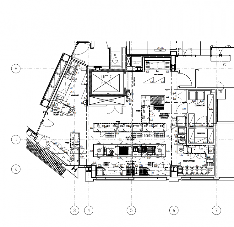
Park Plaza – River Bank

We have worked on various projects at this site, including redevelopment of the Chino Latino Restaurant & Bar, a Support Pantry to facilitate the F&B Service to the function rooms and the redevelopment of the Breakfast Buffet.

floorplan design for park plaza
floorplan design riverbank park plaza
floorplan design park plaza riverbank
arrow-left-alt All case studies

Quicklinks

  • Services
  • Case Studies
  • Contact Us
  • Privacy Policy
  • Terms & Conditions

Sales & Service Office

Unit 7 iQuarter
Allerton Road
Rugby
Warwickshire
CV23 0PA

T: 01788 593593

service@edgedpm.com

Design Office

Office 3
27a Goring Road
Goring by Sea
Worthing
West Sussex
BN12 4AR

T: 01788 593593

design@edgedpm.com

©2026 Edge. All rights reserved. Built by ADAO

linkedin
arrow-up