• Home
  • Services
  • Our Process
  • Case Studies
  • Our Team
  • Contact Us
Contact Us
linkedin
  • Home
  • Services
  • Our Process
  • Case Studies
  • Our Team
  • Contact Us

Ivybank

Ivybank-6

DESIGN – SALES – INSTALL

Ivybank

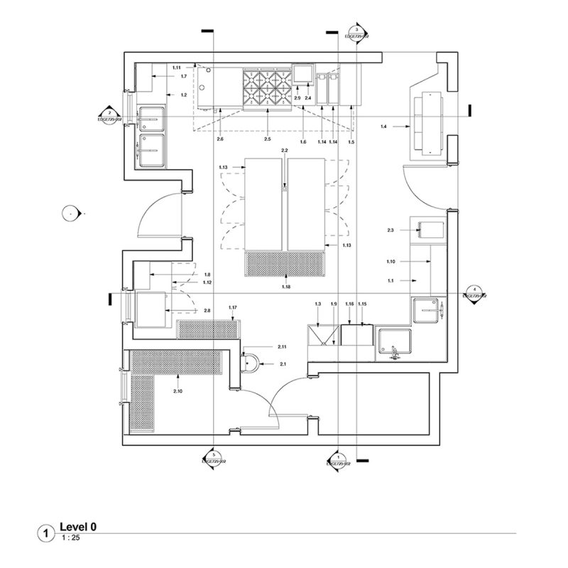
Working within restricted space we re-developed their existing kitchen into a space that is functional and more efficient. We created a 3D model to help the client understand the new kitchen proposal.

 

commercial kitchen floor plan design
Ivybank-6
commercial kitchen floor plan side view
Ivybank-5
arrow-left-alt All case studies

Quicklinks

  • Services
  • Case Studies
  • Contact Us
  • Privacy Policy
  • Terms & Conditions

Sales & Service Office

Unit 7 iQuarter
Allerton Road
Rugby
Warwickshire
CV23 0PA

T: 01788 593593

service@edgedpm.com

Design Office

Office 3
27a Goring Road
Goring by Sea
Worthing
West Sussex
BN12 4AR

T: 01788 593593

design@edgedpm.com

©2026 Edge. All rights reserved. Built by ADAO

linkedin
arrow-up